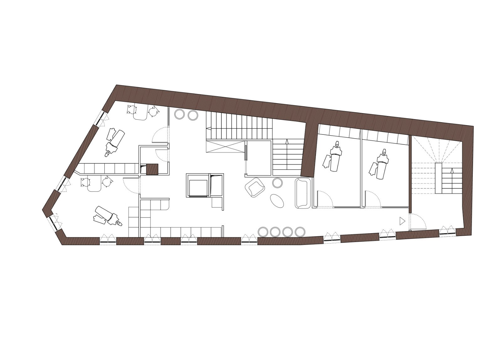
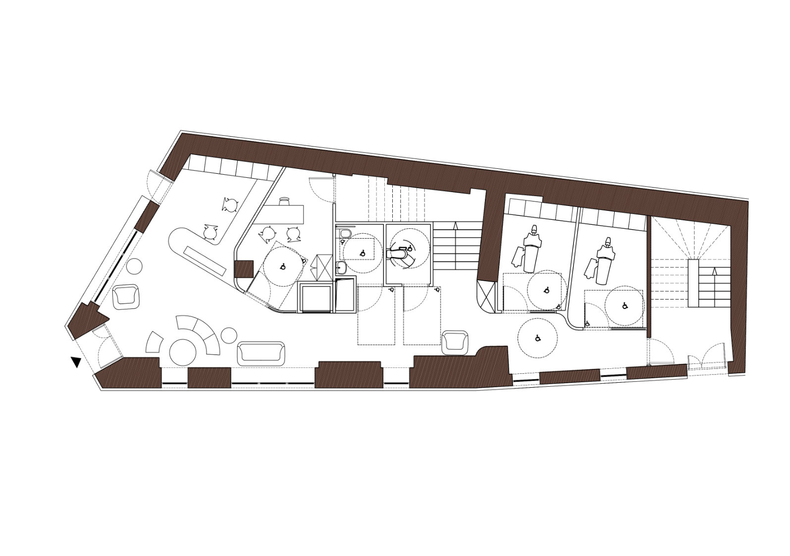
Cabinet médico-dentaire Auxerre

Programme :

Restructuration d'un ancien local commercial en cabinet dentaire et logements

Localisation :

Auxerre

Maîtrise d'ouvrage :

Privé

Surface :

460 m²

Mission :

Conception et suivi de chantier