Programme :
Crèche de 28 berceaux et un jardin pédagogique
Localisation :
Paris 20e arr.
Maîtrise d'ouvrage :
La Planète des Enfants
Nature du projet :
Aménagement d'une crèche dans un local d'activités au RDC et R-1 d'un immeuble d'habitation
Surface :
298 m2 SDP
Mission :
Conception - Dossier d'aménagement ERP - Suivi de chantier
Caractéristiques :
Design épuré et ludique - Matériaux biosourcés
Catégorie :
ERP 5eme cat. type R
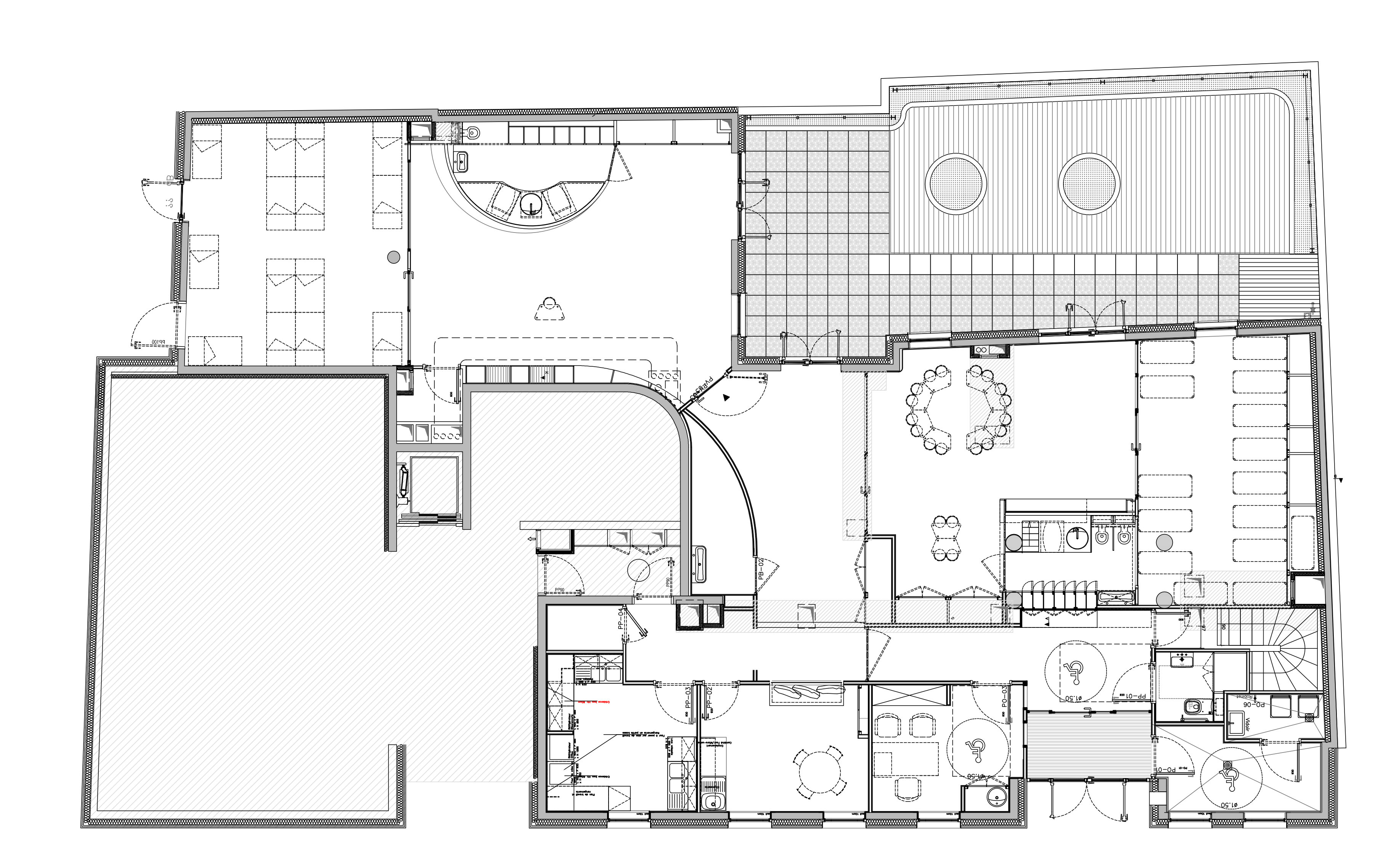
Implantée dans le 20e arrondissement de Paris, cette crèche de 28 berceaux occupe le rez-de-chaussée et le R-1 d'un immeuble résidentiel. Les espaces dédiés aux enfants s'organisent autour d'un jardin pédagogique niché en cœur d'îlot, à l'abri de l'agitation urbaine, instaurant une atmosphère apaisante et un lien constant avec la nature.
Une approche sensorielle et ergonomique, pensée spécifiquement pour les jeunes enfants, a guidé la conception de chaque espace, adapté aux âges et aux usages. La section des tout-petits se distingue par ses lignes courbes et ses aménagements au plus près du sol, favorisant l'accessibilité. Celle des plus grands propose des volumes plus affirmés, conçus pour stimuler leur curiosité et inviter à l'exploration. Une salle de jeux d'eau fait le lien entre ces deux univers. La transparence entre les espaces offre une lecture d'ensemble de l'établissement tout en assurant la sécurité des enfants, tandis que la lumière circule librement. L'acoustique et l'éclairage ont fait l'objet d'études spécifiques afin de garantir confort et souplesse d'utilisation pour chaque espace, de manière indépendante.
Le recours à des matériaux biosourcés tels que le bois, le caoutchouc naturel et des peintures d'origine végétale assure un environnement sain pour les enfants accueillis. La qualité de ces matériaux et le soin apporté à leur mise en œuvre contribuent à créer des espaces propices au bien-être, à l'éveil et au développement de son jeune public.




