Programme :
Surélévation en ossature bois . Création de 2 chambres, d'un espace bureau, d'une SdE et d'un rooftop.
Localisation :
Malakoff (92)
Maîtrise d'ouvrage :
Privée
Nature du projet :
Reconversion d'un ancien atelier de menuiserie en logement
Surface :
Création de 36 m2 SDP + Rooftop
Mission :
Conception et Suivi de chantier
Caractéristiques :
Ossature en bois & matériaux biosourcés
Catégorie :
Résidentiel
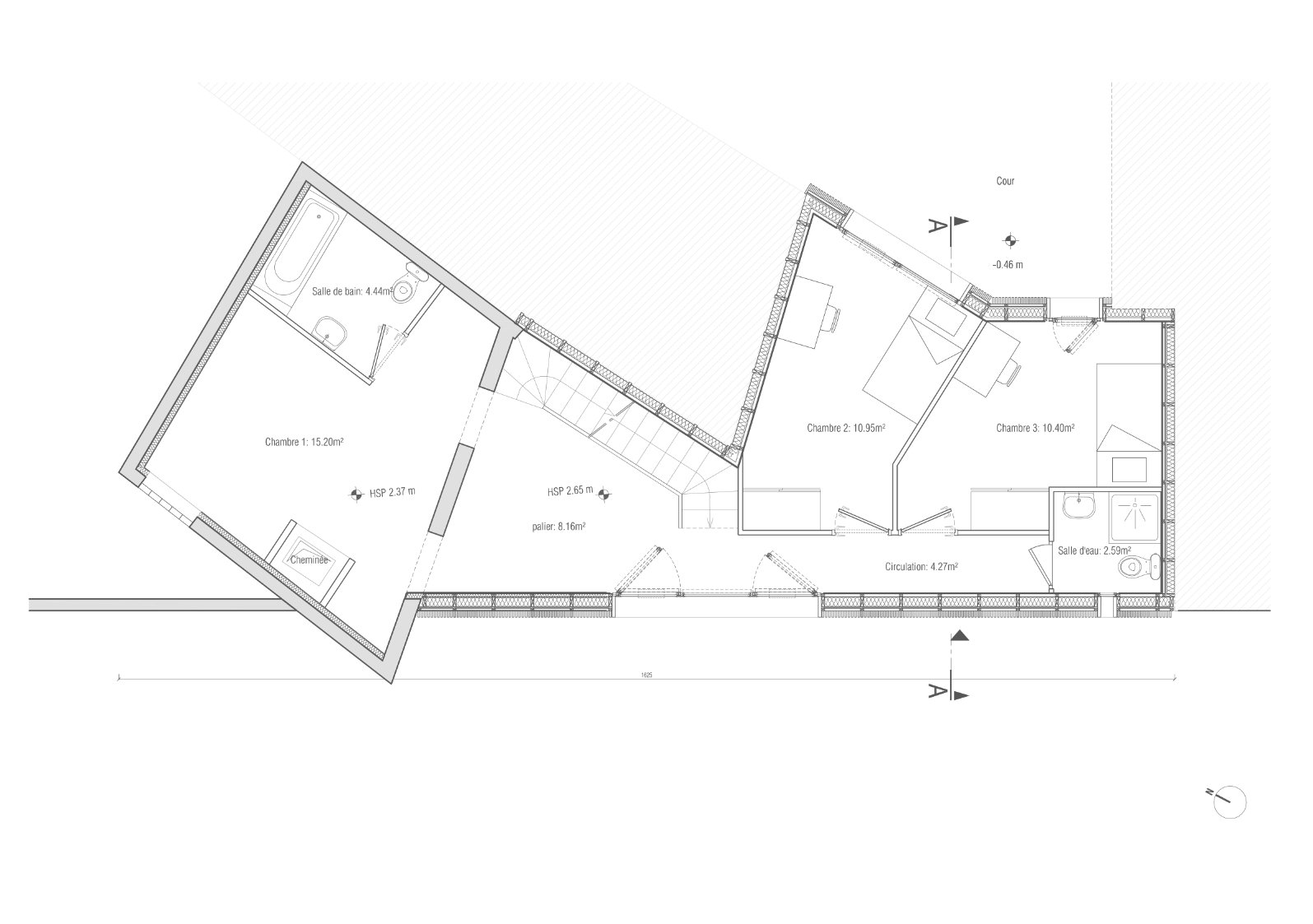
L'emprise initiale de ce logement occupait le RDC et une partie du R+1. Cette surélévation a permis d'exploiter le potentiel constructible de ce bien en créant un volume redonnant une échelle urbaine à cette "dent creuse"pour retrouver une cohérence avec le bâti dense environnant.
Ce projet a joué avec la géométrie très contrainte et irrégulière du gabarit autorisé et l'optimiser au maximum. La façade principale prolonge l'alignement sur rue en offrant une grande baie vitrée laissant pénétrer le soleil jusqu'au RDC grâce à la trémie de l'escalier conçu en ossature légère. Le découpage de la façade en coeur d'îlot permet de générer des volumes discontinus avec l'idée de retrouver une échelle plus intime avec des vues cadrées sur le jardin.
L'espace central, ouvert et lumineux, accueille la circulation verticale reliant le RDC au rooftop tout en offrant un espace bureau au R+1 et donne accès aux chambres.
Le volume de l'édicule en toiture se déploit sur la terrasse en réponse à la géométrie angulaire de la façade intérieure.
Le projet a été réalisé en ossature bois avec renforcement du bâti existant. La majorité des matériaux utilisés est issue de ressources renouvelables.




