Programme :
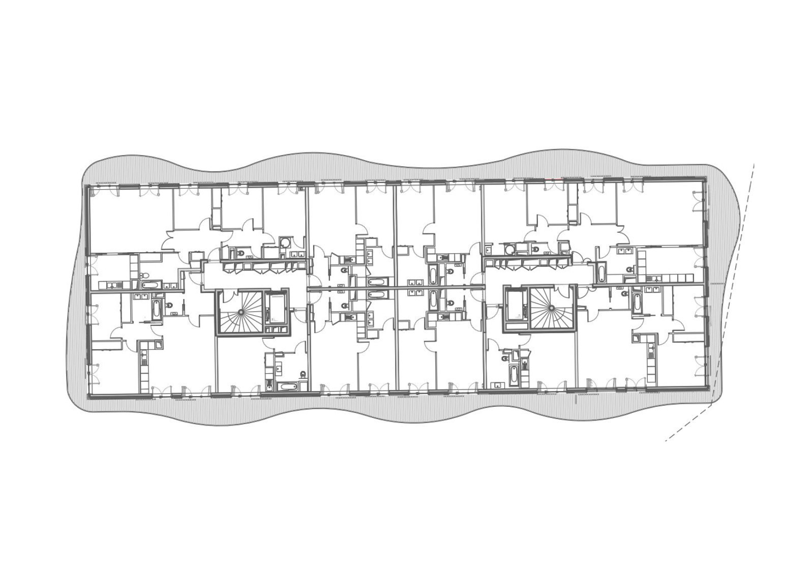
Immeuble mixte de 93 logements et un commerce
Localisation :
Paris
Maîtrise d'ouvrage :
Privée
Nature du projet :
Construction neuve en R+10 sur une ancienne friche industrielle
Surface :
7 337m²
Mission :
Conception et suivi de chantier pour AAD
Caractéristiques :
Habitation , commerce en RDC et parking sous-terrain
Catégorie :
Habitation et commerce




